我們提供的不僅僅是一座冷庫
時間:2024-09-02
瀏覽:1173次
河南蛋凰是一家專注于蛋品流通的供應鏈公司。已于全國養殖規模超200萬羽的大型養殖場合作,目前在合作的有京喜拼拼,多多買菜,美團等,以及大型食品廠。蛋凰的供應理念是;履約、效率、服務。
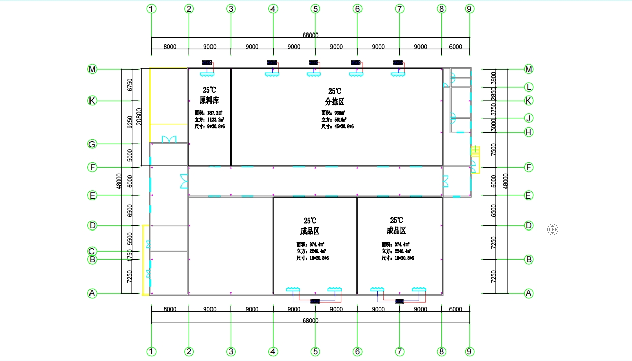
河南蛋凰冷藏倉儲面積:3264平方。
冷藏區域分為:
分揀冷藏庫一間,面積936平方,設計溫度:25
原材料冷藏庫一間,面積187.2平方,設計溫度:25°。
存儲冷藏庫兩間,374.4平方,設計溫度:25°。
項目平面圖:

項目照片




免責聲明:本站部分圖片和文字來源于網絡收集整理,僅供學習交流,版權歸原作者所有,并不代表我站觀點。本站將不承擔任何法律責任,如果有侵犯到您的權利,請及時聯系我們刪除。