我們提供的不僅僅是一座冷庫
時間:2025-02-19
瀏覽:1290次
項目簡介
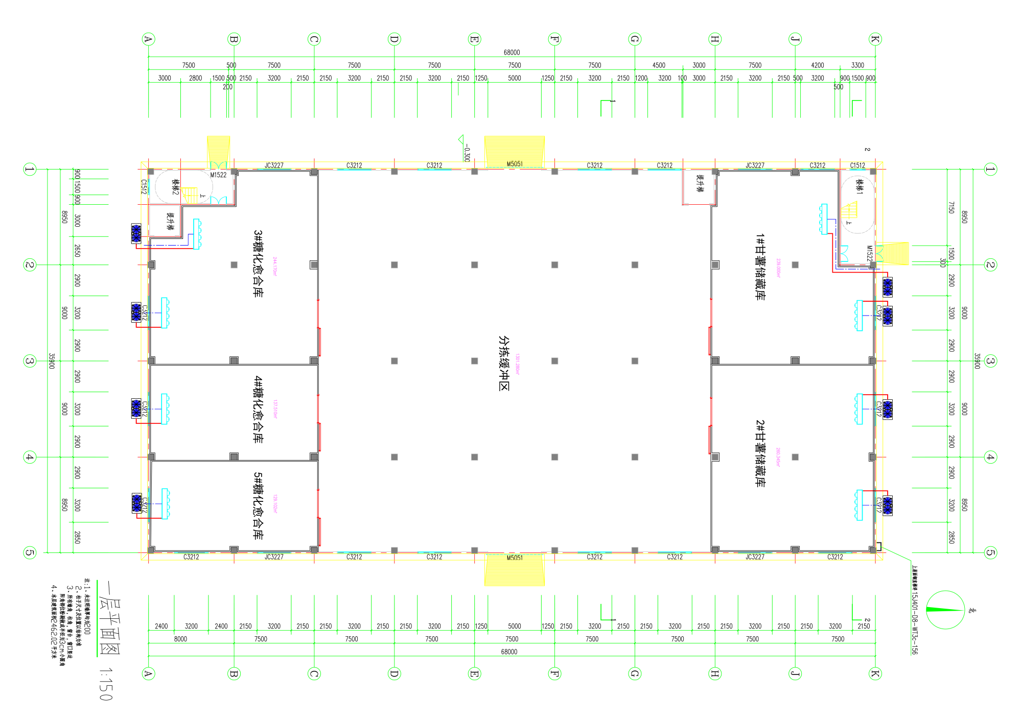
本項目總占地總面積2441.2m2;共分為兩大區域:分揀緩沖區域、倉儲區域。
分揀緩沖區域:總面積1301.28m2。
倉儲區域:由二間甘薯儲藏庫和三間糖化愈合庫組成,凈總面積1009m2,凈總容積4847m3。甘薯儲藏庫設計溫度-5~20℃;糖化愈合庫設計溫度-10~50℃。
1#甘薯儲藏庫:面積239m2,容積1147m3;
2#甘薯儲藏庫:面積260m2,容積1249m3;
3#糖化愈合庫:面積244m2,容積1172m3;
4#糖化愈合庫:面積137m2,容積660m3;
5#糖化愈合庫:面積129m2,凈容積619m3;
糖化愈合庫均具備紅薯愈合、糖化、滅菌、催芽、貯藏等功能。
薯愈合糖化庫是一種專門用于紅薯愈合傷口、糖化及保鮮儲存的庫房,它在紅薯保鮮儲存過程中起著重要作用。
功能特點:
1、愈合傷口:紅薯在采摘、運輸和儲存過程中難免會受到損傷,經過高溫愈合處理,可以促進紅薯外表皮的新陳代謝,加快損傷愈合和修復,減少細菌真菌感染,從而防止紅薯過快腐爛。
2、糖化作用:糖化是指將紅薯中的淀粉轉化為糖的過程,這個過程使得紅薯的口感更加甜美。愈合糖化庫通過控制溫度、濕度和氣流等條件,加速紅薯的糖化過程,提高紅薯的糖度。
愈合糖化庫優勢:
1、提高品質:通過高溫愈合糖化的紅薯,傷口得到愈合,糖度得到提升,口感更加甜美,品質顯著提高。
2、延長儲存期:由于紅薯在愈合糖化過程中減少了細菌真菌感染的風險,因此可以延長儲存期,減少損耗。
3、提升價值:可以為農戶和企業帶來更多的經濟收益。




免責聲明:本站部分圖片和文字來源于網絡收集整理,僅供學習交流,版權歸原作者所有,并不代表我站觀點。本站將不承擔任何法律責任,如果有侵犯到您的權利,請及時聯系我們刪除。