我們提供的不僅僅是一座冷庫
時間:2024-06-01
瀏覽:1539次
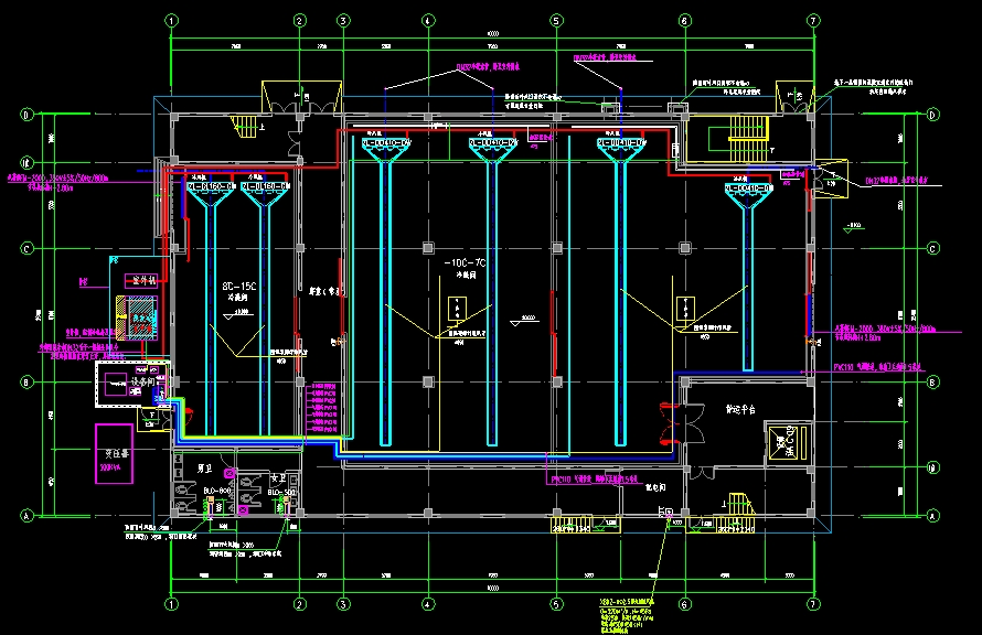
本工程為洛陽市孟津區朝陽鎮人民政府2023年孟津區朝陽鎮氣調冷庫建設鞏固提升項目,該項目位于孟津區朝陽鎮,主要內容為保溫系統、制冷系統、電氣部分、氣調系統送風道、室外電氣、電梯等工程。



免責聲明:本站部分圖片和文字來源于網絡收集整理,僅供學習交流,版權歸原作者所有,并不代表我站觀點。本站將不承擔任何法律責任,如果有侵犯到您的權利,請及時聯系我們刪除。